SCIA ENGINEER
Navigation überspringen
Projekte
Referenzen
Über Uns
Kontakt
Navigation überspringen
Impressum
| English
Beratung
Entwurf
Optimierung
Baueingabe
Bauphysik
Statik/Dynamik
Ausführungsplanung
Stadt + Landschaft
Projekte
>
Massivbauten
>
Brücken
>
Barierrefreie Verbindung MA 2011
>
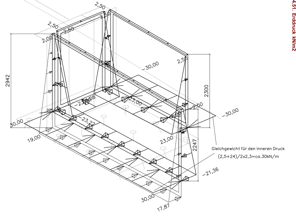
Details: Barierrefreie Verbindung MA 2011
Bitte klicken Sie auf eines der Bilder, um die Galerie zu öffnen.
<<
Zurück