SCIA ENGINEER
Navigation überspringen
Projekte
Referenzen
Über Uns
Kontakt
Navigation überspringen
Impressum
| English
Beratung
Entwurf
Optimierung
Baueingabe
Bauphysik
Statik/Dynamik
Ausführungsplanung
Industrie + Gewerbe
Projekte
>
Sonderbauten
>
Container
>
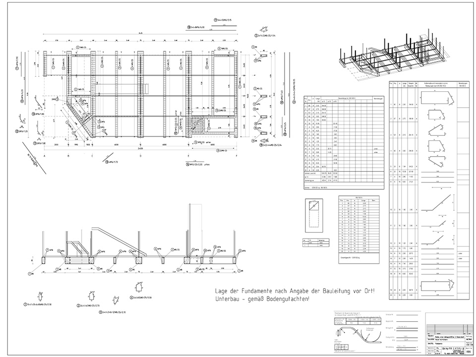
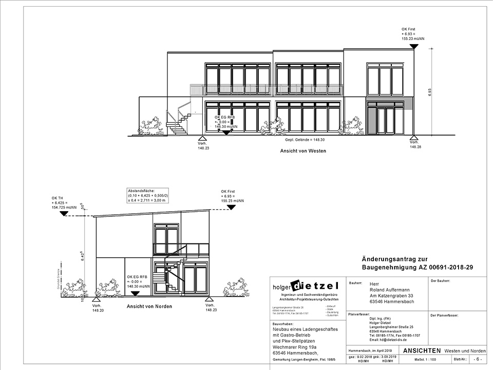
Auffermann Containerbüro Hammersbach 2019
>
Details: Auffermann Containerbüro Hammersbach 2019
Bitte klicken Sie auf eines der Bilder, um die Galerie zu öffnen.
<<
Zurück