SCIA ENGINEER
Navigation überspringen
Projekte
Referenzen
Über Uns
Kontakt
Navigation überspringen
Impressum
| English
Beratung
Entwurf
Optimierung
Baueingabe
Bauphysik
Statik/Dynamik
Ausführungsplanung
Wohnen + Leben
Projekte
>
Sonderbauten
>
Werbung und Fassaden
>
Expo-Event 2001-2004
>
Details: Expo-Event 2001-2004
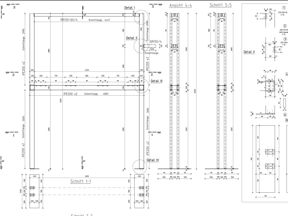
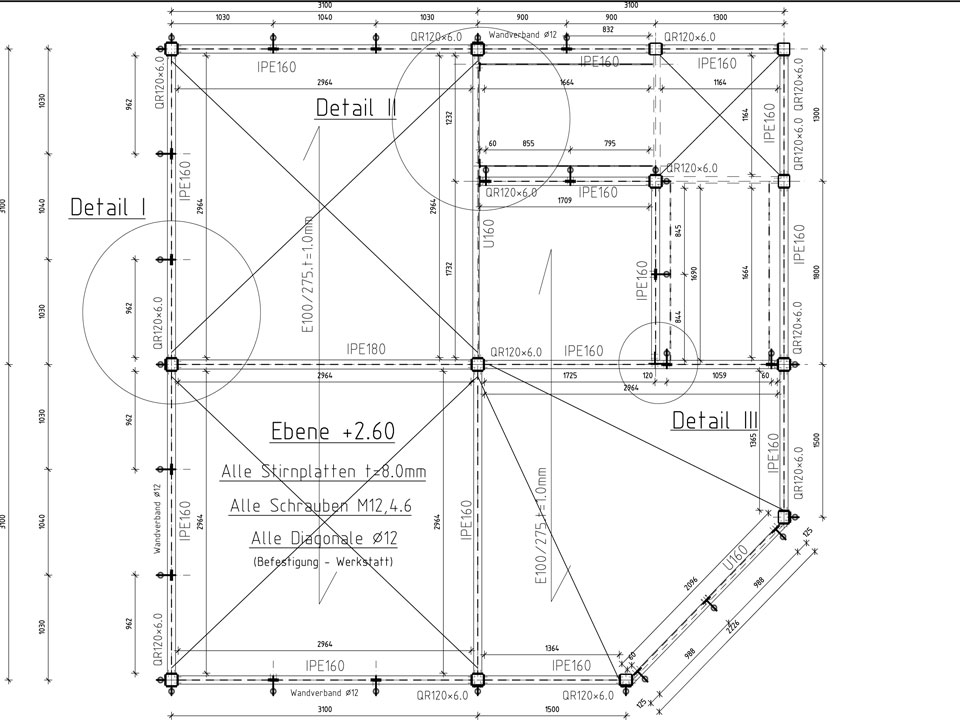
Bitte klicken Sie auf eines der Bilder, um die Galerie zu öffnen.
<<
Zurück